Masz konto na Facebooku? Jeśli chcesz pomóc w rozwoju darmowego serwisu ogłoszeniowego możesz
udostępnić Wystaw.pl oraz obserwować/polubić nasz profil FB - dziękujemy!

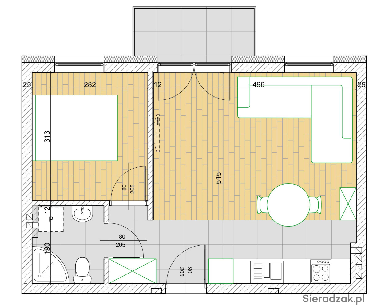
wyjątkowe mieszkanie 2-pokojowe w nowym budynku

Oferta wycofana (nieaktualna)!

Cena: 2 100 zł / miesiąc

Wyjątkowe mieszkanie z widokiem na zamknięty ogród w nowym budynku przy ul. Wodnej 2A w Sieradzu. Budynek ten sąsiaduje z ogrodami parafialnymi przez co jest tu niezwykle uroczo i cicho.

Jego układ funkcjonalny to duży salon z kuchnią, osobna sypialnia, łazienka oraz balkon.
Dodatkowo w piwnicy która jest dostępna bezpośrednio z poziomu wejścia można przechowywać rowery.

Na wyposażeniu jest wielka narożna kanapa, stolik kawowy mały, stół z krzesłami, łóżko 160cm (bez materaca), szafa. W aneksie kuchennym natomiast: lodówka, piekarnik, kuchenka oraz zmywarka. (sprzęty 2 letnie)
Wszystkie okna wyposażone w zasłony oraz rolety.

Budynek został wybudowany w 2016r przez co jest świetnie docieplony, a każdy lokal osobno opomiarowany, co bezpośrednio przekłada się na niskie koszty utrzymania. Znacznie niższe niż w blokach spółdzielczych.

Przy 2 osobach czynsz to ok 440zł (zawiera opłaty ogrzewania, wody, śmieci) do tego prąd ok 160zł. Czynsz do wspólnoty oraz prąd Najemca płaci bezpośrednio wysokość opłat zależy od własnego zużycia.

Istnieje możliwość dodatkowo wynajęcia miejsca postojowego na zamykanym patio (brama na pilota)

Najem wyłącznie okazjonalny, minimalny okres najmu: rok.
Kaucja 3000zł

Mieszkanie będzie dostępne od 1 maja , natomiast umówić się na obejrzenie można w pierwszej połowie kwietnia.

Nie tego szukasz? Przejrzyj inne oferty z tej kategorii (Usługi i WynajemNieruchomościWynajem mieszkańM3 (2 pokoje + kuchnia)). Możesz też zawsze przejść na stronę główną lub skorzystać z wyszukiwarki.

Rozpoczęcie: 19.03.2026, 13:16, zakończenie: 15.05.2026 08:47

Oferta jest już nieaktualna? Być może zawiera nieprawidłowo oznaczoną lokalizację, błędny numer telefonu czy w inny sposób narusza regulamin? Zgłoś nam ten problem - oferta zostanie sprawdzona w pierwszej kolejności!


Tito

 607 [pokaż]

Lokalizacja

  • Sieradz (gmina Sieradz)