Masz konto na Facebooku? Jeśli chcesz pomóc w rozwoju darmowego serwisu ogłoszeniowego możesz
udostępnić Wystaw.pl oraz obserwować/polubić nasz profil FB - dziękujemy!

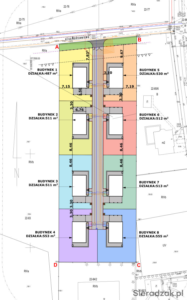
Dom przy ul. Modrzewiowej w Sieradzu

Cena: 694 000 zł / dom

Oferujemy na sprzedaż domy w budowie przy ulicy Modrzewiowej w Sieradzu. Na osiedle będzie składać się osiem budynków mieszkalnych jednorodzinnych. Obecnie w budowie są trzy pierwsze. Budynki mają 114 m² powierzchni użytkowej z funkcjonalnym układem-3 sypialnie + gabinet oraz wiata garażowa. Usytuowane są na prywatnym osiedlu z wydzieloną drogą wewntrzną. Działki na których znajdują się domy mają powierzchnię ok. 500 m2. 

PLANOWANY ZAKRES INWESTYCJI

Inwestycja obejmuje w szczególności:

  • działkę budowlaną,

  • wykonanie przyłączy kanalizacji sanitarnej i wodociągowej do budynku,

  • wykonanie przyłączy instalacji elektrycznej wraz z wewnętrzną linią zasilającą (WLZ),

  • wykonanie przyłącza instalacji gazowej do budynku,

  • wykonanie instalacji oświetlenia ulicznego wraz z montażem latarni,

  • wykonanie ogrodzenia działki z trzech stron,

  • wykonanie podbudowy oraz nawierzchni asfaltowej dróg wewnętrznych

PLANOWANY STAN BUDYNKU – ZEWNĄTRZ

Budynek projektowany jako wykończony na zewnątrz, obejmujący w szczególności:

  • fundamenty z izolacją i ociepleniem (styropian XPS 300L),

  • mury i ściany zewnętrzne z ceramiki budowlanej (Termoton Owczary),

  • impregnowane drewno konstrukcyjne,

  • pokrycie dachowe – blacha na rąbek stojący,

  • ocieplenie zewnętrzne elewacji ( styropian grafitowy EPS 033), tynk strukturalny, parapety zewnętrzne,

  • stolarkę okienną PCV – system trzyszybowy,

  • drzwi zewnętrzne,

  • zadaszone miejsce postojowe,

PLANOWANY STAN BUDYNKU – WEWNĄTRZ

Planowany standard wewnętrzny obejmuje m.in.:

  • ściany wewnętrzne z cegły ceramicznej (Termoton Owczary),

  • wykonanie wylewki betonowej (chudziak),

  • wykonanie instalacji elektrycznej wraz z rozdzielnią wewnętrzną,

  • wykonanie pionów kanalizacji sanitarnej oraz wody,

  • wykonanie przyłączy wodociągowych i kanalizacji sanitarnej,

  • ocieplenie połaci dachowych wełną mineralną (gr. 30 cm),

  • wykonanie przyłącza gazowego wraz z montażem kotła.

INFORMACJA KOŃCOWA

  • Opis ma charakter informacyjny i dotyczy planowanego standardu realizacji inwestycji.

Nie tego szukasz? Przejrzyj inne oferty z tej kategorii (NieruchomościDomyParterowe z poddaszem). Możesz też zawsze przejść na stronę główną lub skorzystać z wyszukiwarki.

Ostatnie zmiany: 28.04.2026 06:50
Wygasa za 9 dni
Rozpoczęcie: 04.03.2026, 11:59, zakończenie: 28.05.2026, 06:48

Oferta jest już nieaktualna? Być może zawiera nieprawidłowo oznaczoną lokalizację, błędny numer telefonu czy w inny sposób narusza regulamin? Zgłoś nam ten problem - oferta zostanie sprawdzona w pierwszej kolejności!


DomDanielewscy

 790 [pokaż]

Lokalizacja

  • Sieradz (gmina Sieradz)