Masz konto na Facebooku? Jeśli chcesz pomóc w rozwoju darmowego serwisu ogłoszeniowego możesz
udostępnić Wystaw.pl oraz obserwować/polubić nasz profil FB - dziękujemy!

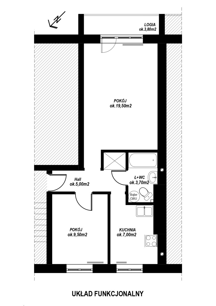
Dwupokojowe mieszkanie z kuchnią + piwnica

Cena: 285 000 zł / mieszkanie
do negocjacji

Mieszkanie o powierzchni 44,70 m2 + piwnica w Sieradzu. 
Położone na II piętrze w bloku przy Al. Pokoju

Składa się z:
-pokoju dziennego z balkonem typu loggia
-sypialni
-oddzielnej kuchni z oknem
-łazienki z wanną i wc
-przedpokoju 
-dodatkowo piwnica. 

Lokal do remontu
Woda i ogrzewanie z sieci

Ciepła woda z boilera
Na podłogach parkiet. 
 

Nie tego szukasz? Przejrzyj inne oferty z tej kategorii (NieruchomościMieszkaniaM3 (2 pokoje + kuchnia)). Możesz też zawsze przejść na stronę główną lub skorzystać z wyszukiwarki.

Ostatnie zmiany: 10.04.2026 22:13
Wygasa za 75 dni
Rozpoczęcie: 30.11.2025, 18:24, zakończenie: 09.07.2026, 22:08

Oferta jest już nieaktualna? Być może zawiera nieprawidłowo oznaczoną lokalizację, błędny numer telefonu czy w inny sposób narusza regulamin? Zgłoś nam ten problem - oferta zostanie sprawdzona w pierwszej kolejności!


mikig2

 602 [pokaż]

Lokalizacja

  • Sieradz (gmina Sieradz)