Masz konto na Facebooku? Jeśli chcesz pomóc w rozwoju darmowego serwisu ogłoszeniowego możesz
udostępnić Wystaw.pl oraz obserwować/polubić nasz profil FB - dziękujemy!

Dom jednorodzinny w zabudowie bliźniaczej

Cena: 460 000 zł / dom
do negocjacji

Do sprzedania dom mieszkalny jednorodzinny bliźniak w miejscowości Brzeźnio , dom wybudowany jest na nowo powstałym osiedlu domków z drogą . Dom obecnie znajduje się na etapie wykończenia .

Mieszkania oddzielone podwujnym murem 50 cm  + akustyczny styropian

Ekologiczna oczyszczalnia do każdego mieszkania 

działka 5 ar

elewacja kolor 

częściowe ogrodzenie 

media 

karta charakterystyki energetycznej 

odbiór budynku 

 

 gotowy do odbioru w 2026 r.

Cena 423200 tys zł netto +8% vat

 

pompa ciepła przy dopłacie  

 

Dla kupujących dodatkowy rabat na materiały wykończeniowe w Hurtowni Budowlanej EKO KRIS 

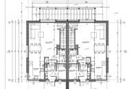
Powierzchnia zabudowy 86,9 m2

Składający się z pomieszczeń 

Wiatrołap 4,2 m2

Komunikacja 2,3 m2 

Kuchnia + Salon 32,9 m2

Łazienka 4 m2

Pokój 11,8 m2

Pokój 8,1 m2

Pokój 9,8 m2

Łazienka 3,1 m2

Kotłownia 3,4 m2

Komunikacja 7,3 m2

Stan wykończenia i elementy budynku .

1 Fudamenty : Ława fudamentowa ,wyprowadzona bloczkiem betonowym .

2 Ściany

-ściany zew.z pustaków ceramicznych 25 cm na zaprawie cementowo wapiennej 

-ściany wew.nośne z pustaków ceramicznych 25 cm  na zaprawie cementowo wapiennej 

-ściany działowe z pustaków ceramicznych 12 cm 

-komin systemowy do kominka w salonie 

3 Izolacja:

-izolacja termiczna ścian zewnętrznych - styropian grafitowy o grubości 20 cm  

-izolacja pozioma ścian - na ścianach zew. wew. stykających się z gruntem  - izolacja pozioma 

-izolacja cieplna podłóg na gruncie - styropian gr. 15 cm zabezpieczony od spodu folią paroszczelną z PCV

4 Dach 

-konstrukcja dachu drewniana wieźba 

-pokryty dachówką betonowa 

5 Strop - Teriva 

6 Tynki:

-zew styropian +klej+tynk silikonowy kolor biały+grafit wstawki 

-tynk wew cementowo-wapienny nakładany maszynowo 

7 Okna 

-PCV 3 szyby okleina jednostronna w kolorze antracyt

8 Drzwi 

- zew. metalowe 

- wew brak 

9 Instalacje 

-rozprowadzenie instalacji elektrycznej ze skrzynką 

-instalacja wodno-kanalizacyjna rozprowadzona z odpływem dp przydomowej oczyszczalni ścieków 

-instalacja C.O.-rozprowadzona z ogrzewaniem podłogowym całej powierzchni podłóg oraz wprowadzeniem pod drabinkę w łazience

10 Elementy wykończeniowe zew.

-rynny PCV

-podbitka 

11 Posadzki -wylewka cementowa 

12 Parapety :

- zew metalowe 

- wew. brak 

13 Taras - do własnej aranżacji

14 Ogrodzenie - częściowe 

15 Działka - do samodzielnego zagospodarowania 

 

Niniejsze ogłoszenie jest wyłącznie informacją handlową i nie stanowi oferty w myśl art.66 ,paragraf 1.Kodeksu Cywilnego

 

 

Nie tego szukasz? Przejrzyj inne oferty z tej kategorii (NieruchomościDomyBliźniaki i szeregowe). Możesz też zawsze przejść na stronę główną lub skorzystać z wyszukiwarki.

Ostatnie zmiany: 27.01.2026 12:51
Wygasa za 24 dni
Rozpoczęcie: 17.09.2024, 19:44, zakończenie: 13.05.2026, 07:48

Oferta jest już nieaktualna? Być może zawiera nieprawidłowo oznaczoną lokalizację, błędny numer telefonu czy w inny sposób narusza regulamin? Zgłoś nam ten problem - oferta zostanie sprawdzona w pierwszej kolejności!


Eko_Kris

 603 [pokaż]

Lokalizacja

  • Brzeźnio (gmina Brzeźnio)

Informacje dodatkowe

  • Krzysiek 603040674 ,514688405 ekokris@interia.pl